ПОРТФОЛИО
О НАС
УСЛУГИ
НАПРАВЛЕНИЯ
ДОСТИЖЕНИЯ
КОНТАКТЫ
Частным клиентам
Застройщикам и девелоперам
Дизайнерам и архитекторам
Производителям
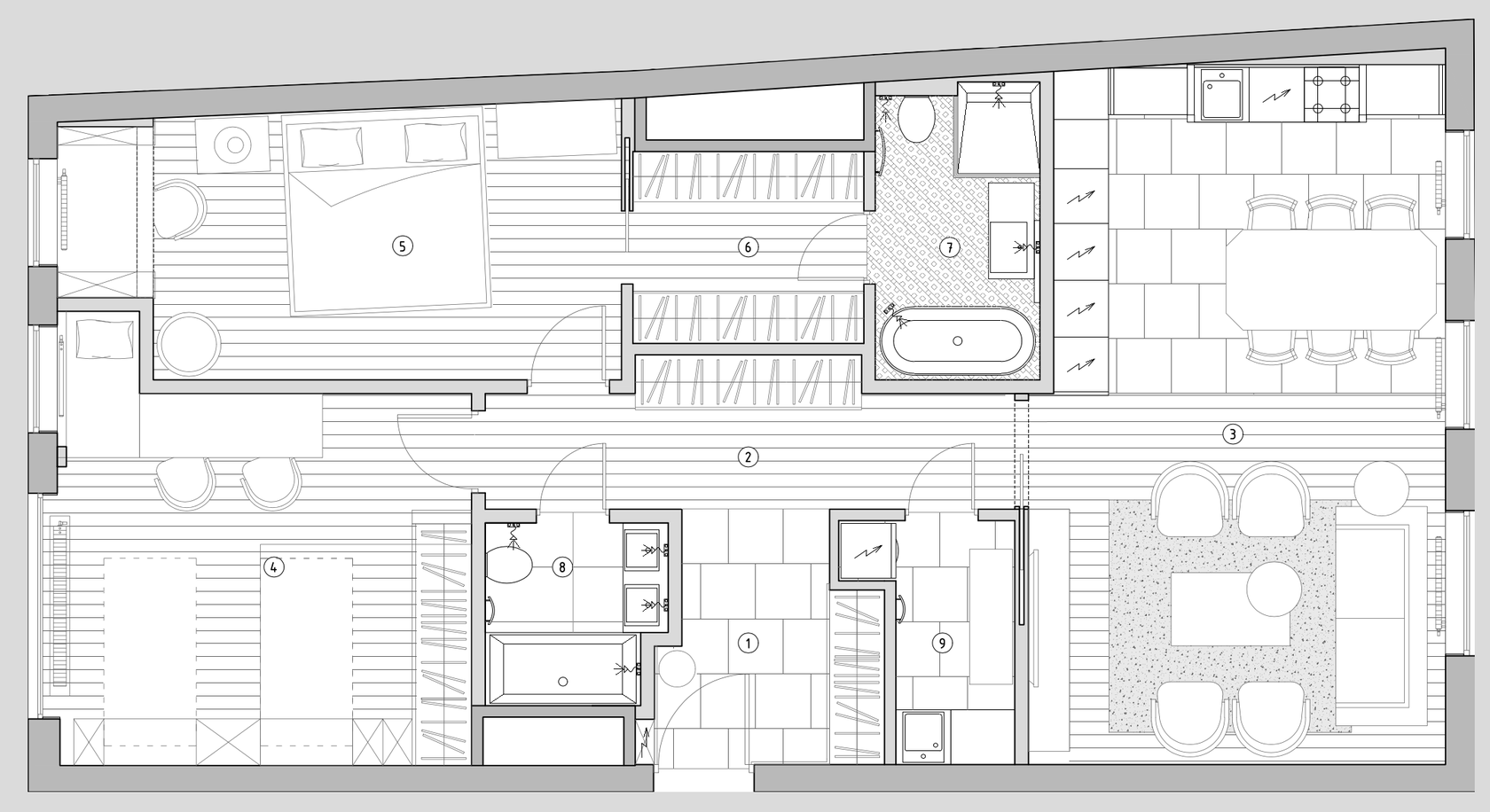
Кафедральный шик 104 кв.м. Москва, 2019
Кафедральный шик 104 кв.м. Москва, 2019
1
2
3
4
5
6
7
8
9
Прихожая
Коридор
Кухня/Столовая/Гостиная
Детская комната
Спальня
Гардеробная
Ванная комната
Санузел
Постирочная